| ■リビングガーデン | 2003.08 |
| 計画地 :神奈川県横浜市磯子区 | 落ち着いた住宅街で南北にオープンで採光も通風もすばらしい敷地。敷地は十分なほど広く、建替え前のおおらかな庭と家の関係を残したまま2世帯住居へと作り変える計画。庭を広く明るく確保するために居住部分はコンパクトな総3階建ての建物にまとめ、南側の全面を占める縁側やバルコニーを介して庭と向き合わせている。三叉路の突き当りとなる南側道路に沿っては平屋のガレージのフレームを介して庭の風景を切り取り、街と庭との接点としていて、大型の木製格子戸によって適宜閉鎖できる仕組みである。ガレージの棟には離れの和室も設けていて日中ほとんど庭で過ごす施主のもうひとつの家となっており、また床や手摺、建具などに木ルーバーを多用することで、木造3階建ての防火制限のなかでも木の風合いを活かした家となるよう配慮した。 |
| 用 途 :2世帯住居 | |
| 主要構造:木造在来工法、一部鉄骨造 | |
| 敷地面積:322.20m2 | |
| 延べ面積:245.92m2 | |
1FPLAN
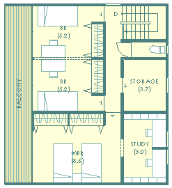
2FPLAN
3FPLAN
PERSPECTIVE
|
|
|
|
|
|
|
|