| ■極小の家(目黒) | 2006.03 |
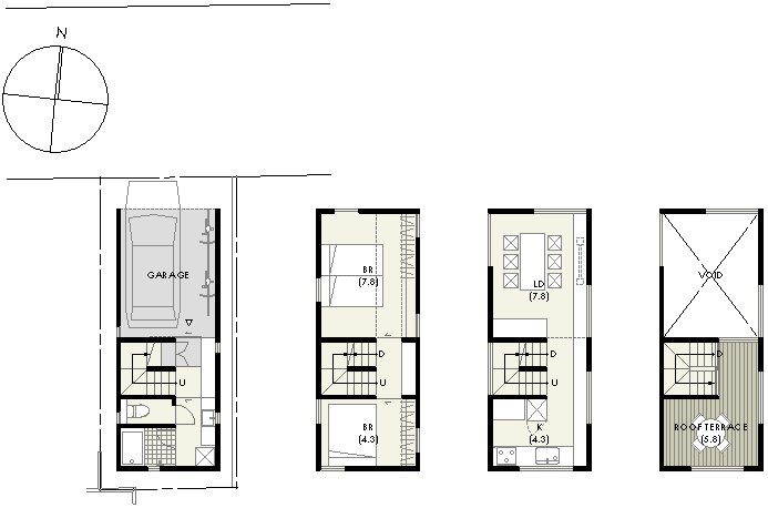
| 計画地 :東京都目黒区 | 幹線道路を一本入ってすぐの住宅地。都心らしくそのほとんどが小規模な宅地で埋め尽くされたような場所であるが、その分とても利便性が高くそのわりに静かで穏やかな環境でもある。敷地面積が13坪しかなく、低層住宅地の敷地条件の中で夫婦(+子供2人)が住めるローコストな家の計画である。南北に長い敷地のほぼ真北が広めの道路であるという好条件のおかげで、北側斜線、日影規制の制限内でなんとか3階建てが可能であることがわかったが、非常に近接している周辺の2階建て建物が今後3階建てに建て替ることは困難であろうと思われる。そのことから、計画建物は四周に視線を開くことができる3階レベルにLDを配置することとし、1階の水廻り、2階の寝室、3階のLDKと上にあがるにしたがってパブリックなスペースとなるように各階を構成している。上方にいくほど天井高さが高くなり、開口部が大きくオープンになっていくことは外観にも明確に反映されるようにしていて、跳ね出しバルコニーなどを設けない箱型の建物とした代わりに最上階には非常に気持ちがよいであろう屋上テラスを設けていて採光にも有効に活用している。 |
| 用 途 :住宅 | |
| 主要構造:木造SE工法 | |
| 敷地面積:43.36m2 | |
| 延べ面積:77.79m2 | |
PLAN(1F/2F/3F/PH)
|
|
|
|
|
|