| ■鷹取の家 | 2008.05 |
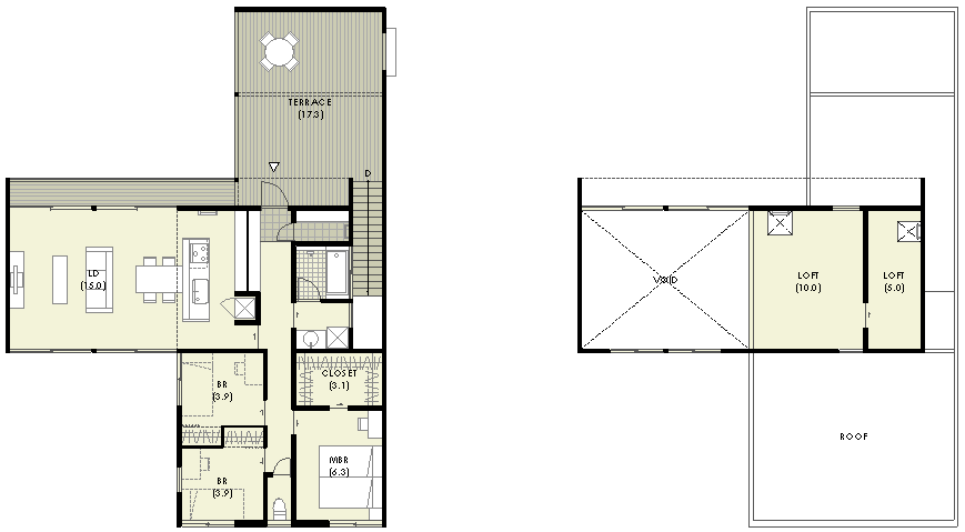
| 計画地 :神奈川県横須賀市 | 歩道もあるバス通りの並木道に面する家。高台にあるため日当たりも見晴らしも良く、北側は小高い山の斜面が近くに迫っている(東方面には花火が見える)。道路は南に向かってゆるやかに下る坂道となっているため、必然的に敷地に進入できる北側を二世帯4台分の駐車スペースとした。道路に面する外観は開口部が少ない長く閉鎖的な壁面としていて、大きく穿った開口部を駐車スペース及び二世帯の玄関への アプローチとしている。各世帯は内部ではつながりを持たない”重層長屋”形式とし、各々のプライベート空間相互には少し距離感を設けている。二階には庭を持たない分、子世帯専用の広いテラスを設け、また二世帯の大家族が集まってバーベキューなどをする庭は敷地の東南部になるべくまとまった広さで確保した。 |
| 用 途 :二世帯住宅 | |
| 主要構造:木造在来工法 | |
| 敷地面積:292.15m2 | |
| 延べ面積:200.09m2 | |
1FPLAN
2F/LOFTPLAN
|
|
|
|
|
|
|
|