| ■4/4の家 | 2008.10 |
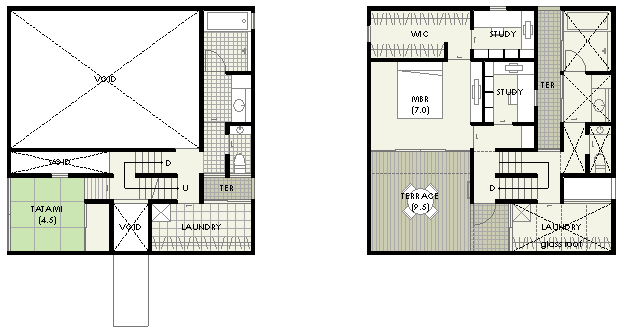
| 計画地 :神奈川県横浜市 | 緩やかな起伏のある高台の住宅地。ゆったりとした敷地の間口の広さを活かせるように建物はコンパクトな直方体のボリュームに抑え、3台分の駐車スペースと庭やアプローチなどのオープンスペースを建物の外周に確保している。建物内部には交差しながら貫通する4本の動線を設けることで内部空間はスキップフロアを伴う4つの用途の異なる領域に分割されており、この動線はまた吹抜やテラスとなってプライバシーを守りつつ各部屋に通風と採光をもたらす装置としても機能している。 |
| 用 途 :住宅 | |
| 主要構造:木造一部鉄筋コンクリート造 | |
| 敷地面積:197.49m2 | |
| 延べ面積:140.35m2 | |
1FPLAN
M2F/2FPLAN
|
|
|
|
|
|