| ■成城の家 | 2004.06完成(設計のみ担当) |
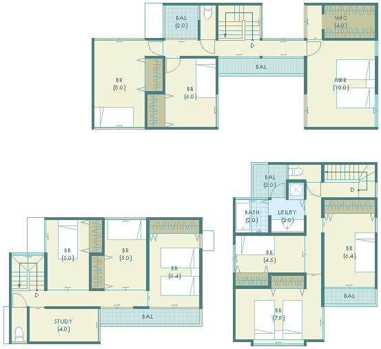
| 計画地 :東京都世田谷区 | 3宅地からなる建売住宅の計画。3宅地とも共通で道路に面する西側に駐車スペース兼用のオープンなフロントヤードを設け、奥まった部分にはよりプライベートな庭を設けている。建物は全て緩勾配の片流れ屋根の2つのブロックの組み合わせから成り、北西部のブロックの交差部分よりアプローチする点で共通している。道路面に対しては閉鎖的な箱型のボリュームを突出させることで、オープンな外構とシンプルな建築の調和を図っている。 |
| 用 途 :建売住宅(3棟) | |
| 主要構造:木造在来工法 | |
| 敷地面積:(A)165.29m2(B)140.41m2(C)125.25m2 | |
| 延べ面積:(A)130.82m2(B)112.20m2(C)99.50m2 | |
1FPLAN(A↑/B→/C↓)
2FPLAN
PERSPECTIVE
|
|
|
|
|
|
|
|
|
|
|
|