| ■大船の家 | 2012.03 |
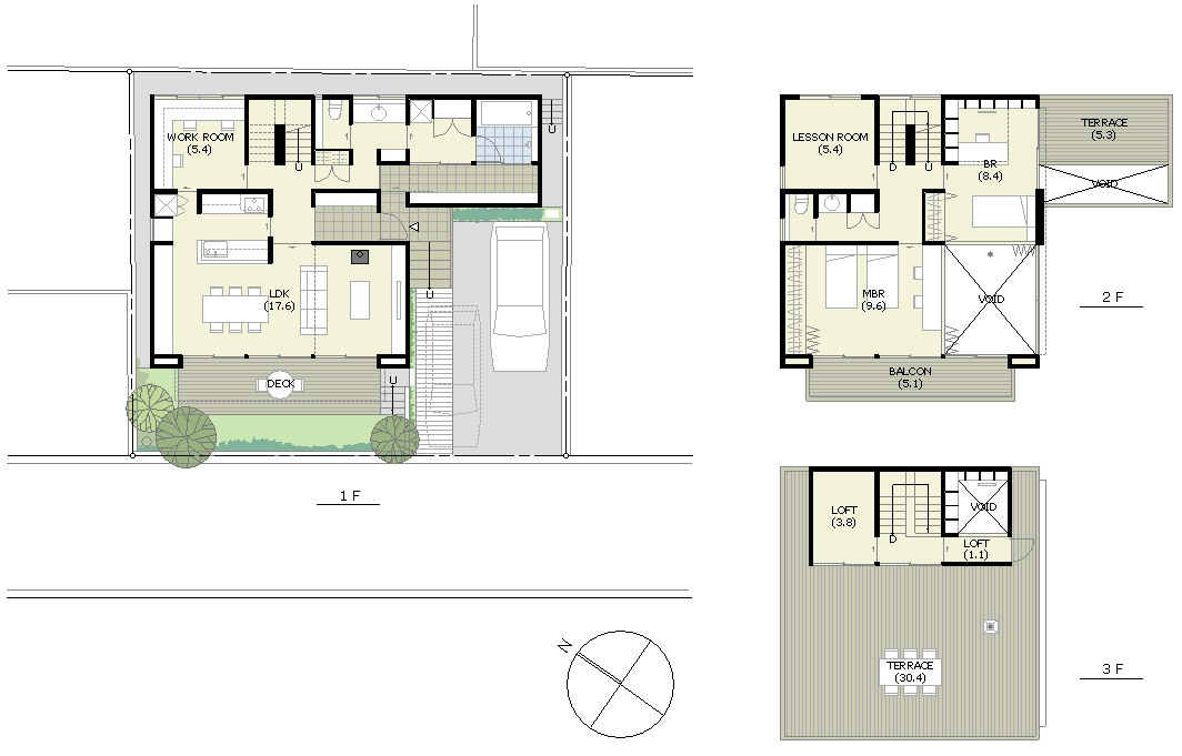
| 計画地 :神奈川県鎌倉市 | 丘の上の住宅地にある家の建替計画。前面道路もあまり広くなく、周辺の家が今後敷地分割され狭小の三階建住宅に 建て替えられていく可能性のある立地環境である。建物は将来の日照を確保するため南側に2台分の駐車スペースとして 空地を設け、吹抜と高窓によって1階LDの日当たりを確保している。LDを中心に家族3人の個室と共用のワークルーム、 音楽室を配置し、将来のバリアフリー化に備えて1階に水廻りを集中させている。 2階以上からの眺望がよいため、屋外テラスやバルコニーを各所に設けるとともに、浴室にはバスコートも付属させた。 |
| 用 途 :住宅 | |
| 主要構造:鉄骨造 | |
| 敷地面積:168.52m2 | |
| 延べ面積:150.52m2 | |
PLAN
|
|
|
|
|
|
|
|