| ■西荻の家 | 2002.07 |
| 計画地 :東京都杉並区 |
いわゆるデザイナー建売住宅2戸の計画。旧来のやり方で分筆された土地にあくまでローコストで30坪強の建物を一般的な4人家族を想定してという要件である。立地はよいので土地の分譲価格は建物の数倍もの価格となり、その高額に見合うなんらかのデザイン的な付加価値が要求された。
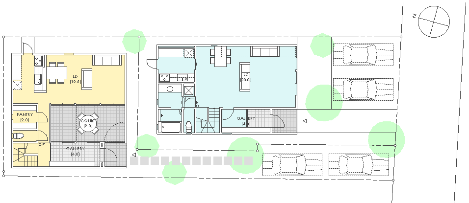
北側奥の宅地のために発生する長い通路は南側の恵まれた宅地の庭と一体化して開放的な庭として整備し、その分家の中にそれぞれ囲い込まれたコートを配置することで日照やプライバシーを確保している。デザイン的にはあくまで シンプルな構成ながら、2戸共通のデザインとできることで敷地を飛び越えて連続していくようなシーンが生み出されている。 家の中でも家族構成や暮らし方が限定されないように部屋と部屋、内と外があいまいにつながっていくような間取りとしている。 |
| 用 途 :建売住宅 2戸 | |
| 主要構造:木造在来工法 | |
| 敷地面積:148.98m2/139.37m2 | |
| 延べ面積:104.33m2/103.92m2 | |
1FPLAN
2FPLAN
PERSPECTIVE
|
|
|
|
|
|
|
|
|
|
|
|