| ■練馬のアパートメント | 2003.08完成予定 |
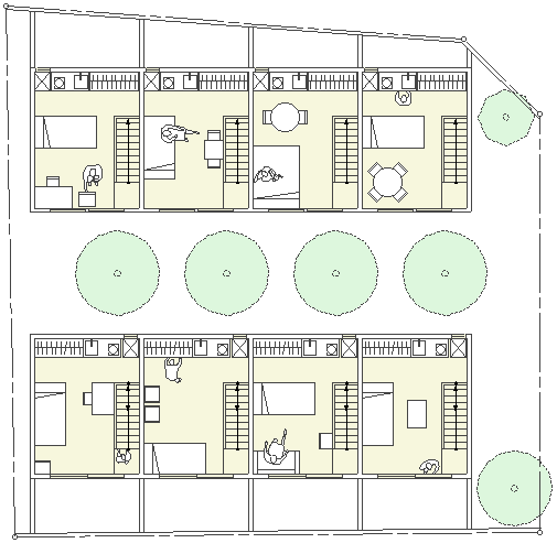
| 計画地 :東京都練馬区 | 学生向けの賃貸住宅の計画。周辺の良好な住宅街のスケールにならい4戸×2棟の計8戸からなる小さなメゾネット をテラスハウス形式で設けている。各住戸とも接地している点を活かし独立性の高い専用テラスを設けるとともに、広めのポーチを 設けそこに目障りになりがちな駐輪スペースやメーター類を収納している。 2棟にはさまれたコート部分には既存の樹木を移植し、住人同士の交流を誘発するような多目的な場ととらえている。 内部は、1階は水廻りを含めて全て土間として、日照の期待できる2階をワンルームの居室としている。共用部を持たない長屋形式とすることでいくつか法的なメリットも得られている。 |
| 用 途 :集合住宅(長屋)8戸 | |
| 主要構造:軽量鉄骨造 | |
| 敷地面積:274.47m2 | |
| 延べ面積:252.00m2 | |
1FPLAN
2FPLAN
PERSPECTIVE
|
|
|
|
|
|
|
|