| ■吉祥寺・O-Complex | 1999.07 |
| 計画地 :東京都武蔵野市 |
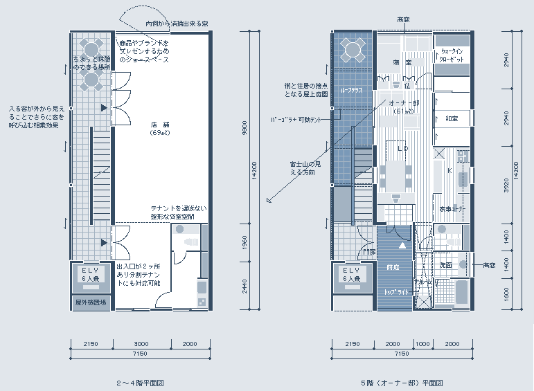
JRの駅に程近い繁華街の中に計画された商業ビルである。 敷地は小規模ながら商業地としての立地には大変恵まれている。現在この場所(1階のみ店舗)にお住まいのオーナー(女性)は引き続きこの地に単身で住まわれることを希望された。商業地域で容積率363%(前面道路幅員による)の地域で2面の道路は幅員6m、4mと狭く道路を挟んだ北西には日影規制を生じさせる近隣商業地域が隣接するというボリュームを確保するにはきびしい条件の土地である。加えてオーナーは5階より富士山が望めることを条件としてあげられ、きびしい条件ながら5階建てとすることが基本要件となった。立地的に恵まれているとは言え、地下階及び3・4階への優良なテナント(飲食以外を希望)を誘致するにはそれなりの集客するための仕掛けが必要だと考え、エレベーターに頼らず地下階及び上階へと客を導くための外部階段及び外部通路空間を長手方向となる道路面に添わせて張り付けた。その外部空間は必要に応じて可動出来る格子(ルーバー)で全面覆われ、中を行き来する客の姿を街に対してプレゼンテーションすることで、さらに新たな客を吸引することと、ルーバー部が開閉することと昼夜における内部の透け方の違いなどにより時に応じて姿を刻々と変化させることが意図されている。ルーバーは5階のオーナー邸まで同じデザインのまま延長され(斜線制限の適用除外を前提としている)、都市居住のためのプライベートなテラスへと転化する。 |
| 用 途 :商業ビル+オーナー邸 | |
| 主要構造:鉄筋コンクリート造(薄肉ラーメン構法) | |
| 敷地面積:261.50m2 | |
| 延べ面積:178.45m2 | |
PERSPECTIVE
|
|
|
|
|
|