| ■洋光台の2世帯住居 | 2004.01 |
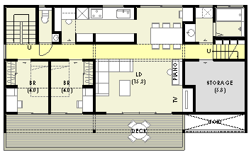
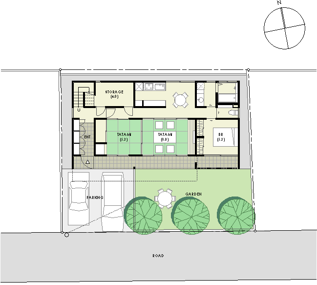
| 計画地 :神奈川県横浜市磯子区 | 南道路で接道間口が広く日当り良好な敷地。雛壇上に造成された土地で北側にみなとみらい地区、西の遠方に富士山まで望むことができる。30年ほど住んだ家を2世帯住宅に建て替える計画である。基本的な配置は現在の建物と大きく変えることなく、敷地の東西の間口を目一杯活かして各部屋への日当たりを重視した間取りとし、玄関のみ共有の2世帯住宅で1階の親世帯、2階の子世帯とほぼ同じ間取りとしている。子世帯の床が不足する分を補う形で半階のロフトと床下収納を2階に挿入することで天井の高さの変化、通風のための高窓、寝室間の距離感など生み出している。2階は庭を持たない分広いデッキスペースを張り出させていて、1階や道路からの視線をうまく遮るようにしている。 |
| 用 途 :2世帯住宅 | |
| 主要構造:木造在来工法 | |
| 敷地面積:204.11m2 | |
| 延べ面積:162.00m2 | |
1FPLAN
2FPLAN
LOFTPLAN
MODEL PHOTO
|
|
|
|