| ■小机の家 | 2004.04 |
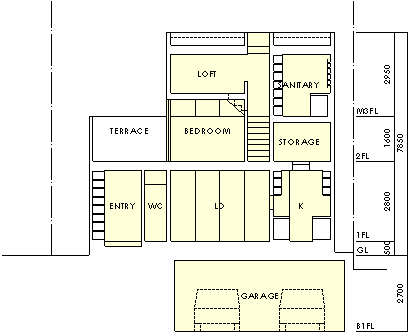
| 計画地 :神奈川県横浜市港北区 | 北に向って眺望の開けた、なだらかな雛壇造成地における計画。北側の8m道路に面して4台収納できる広い地下車庫が造成によって既に設けられていて、敷地地盤はその分道路面より高くなっている。建蔽率40%容積率80%の敷地制限の中で最大限の居住空間を、限られたコストの中で実現することが求められた。敷地の半分以上には地下車庫の屋根が地盤より突出していて、それをそのまま木造の建物の基礎としてトレースして利用することで建物の配置を決定している。個室が最大で5室設けられることが求められたが、建物中央に多分に演出の施された動線を厳密に配することと、斜線制限が割合厳しくない中でロフトと床下収納を積極的に活用することで遊びのある快適な空間を作り出している。 |
| 用 途 :住宅 | |
| 主要構造:木造在来工法 | |
| 敷地面積:125.01m2 | |
| 延べ面積:99.80m2 | |
1FPLAN
2F/LOFTPLAN
SECTION
MODEL PHOTO
|
|
|
|
|
|