| ■岸根公園の家 | 2003.08 |
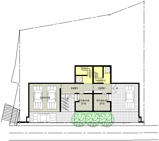
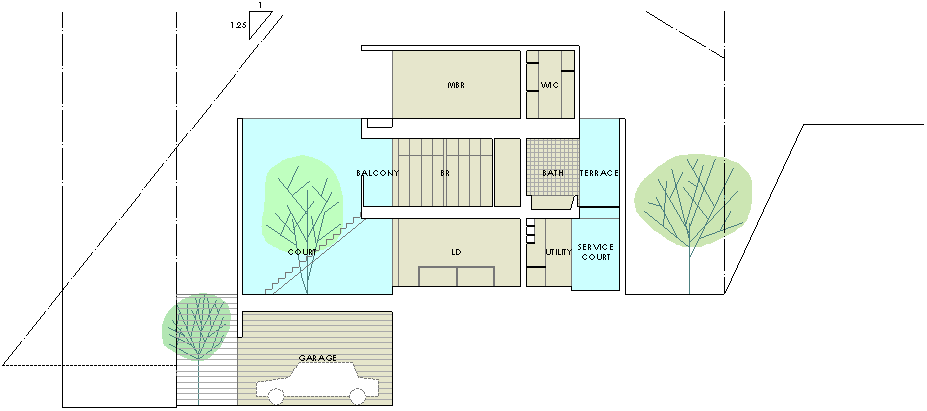
| 計画地 :神奈川県横浜市港北区 | 前面道路より3m程高い日当たりの良い敷地における完全分離2世帯住宅の計画。交通量の多い南東側の通りより見上げられる位置にあるので日照を取り入れながらその視線を遮ることと、防犯を考慮して、現況地盤レベルにコンクリートの閉鎖的な箱を置いて、その箱の中にプライベートな外部空間をあちこちにうまく内包することで採光と通風を取り入れている。下部の道路レベルに駐車場と玄関を設け、それぞれの世帯に設けるエレベーターを中心として2世帯を完全に分離できて、また将来的につなぐこともできる平面計画としている。 |
| 用 途 :2世帯住宅 | |
| 主要構造:鉄筋コンクリート造 | |
| 敷地面積:500m2 | |
| 延べ面積:549.45m2 | |
1FPLAN
B1FPLAN
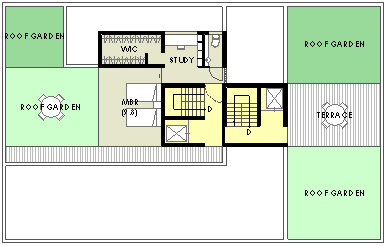
2FPLAN
3FPLAN
SECTION
MODEL PHOTO
|
|
|
|