| ■囲んで開く家(鎌倉) | 2003.11 |
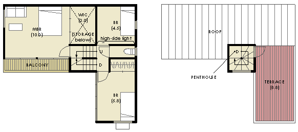
| 計画地 :神奈川県鎌倉市 | 旗竿形の敷地であるが、敷地の南が全て青地(旧水路の国有地)を介して市街化調整区域である緑地(2mほど地盤が高い)に面するという絶好の日当たりと眺望に恵まれた敷地である。建売住宅であるので出来るだけコンパクトに納めて部屋数を確保するのを前提に、その眺望を最大限取り入れるよう配慮している。敷地の北に控えるように建物をL字型に配置してその中央の入隅部にコンパクトな廻り階段を設置し、動線を最小化するためスキップフロア形式の階構成としている。スキップすることで階と階があちこちでつながりだし、半階の収納や屋上テラス、隠れ家のようなペントハウスなど多様な空間が生まれることとなった。寝室も広さ、形状、天井高さ、日照の取り入れ方など全て性格のことなる部屋としている。 |
| 用 途 :建売住宅 | |
| 主要構造:木造在来工法 | |
| 敷地面積:113.72m2 | |
| 延べ面積:96.89m2 | |
1FPLAN
2F/PHF PLAN
ELEVATION/SECTION
MODEL PHOTO
|
|
|
|