| ■高台にあるコートハウス | 2004.03 |
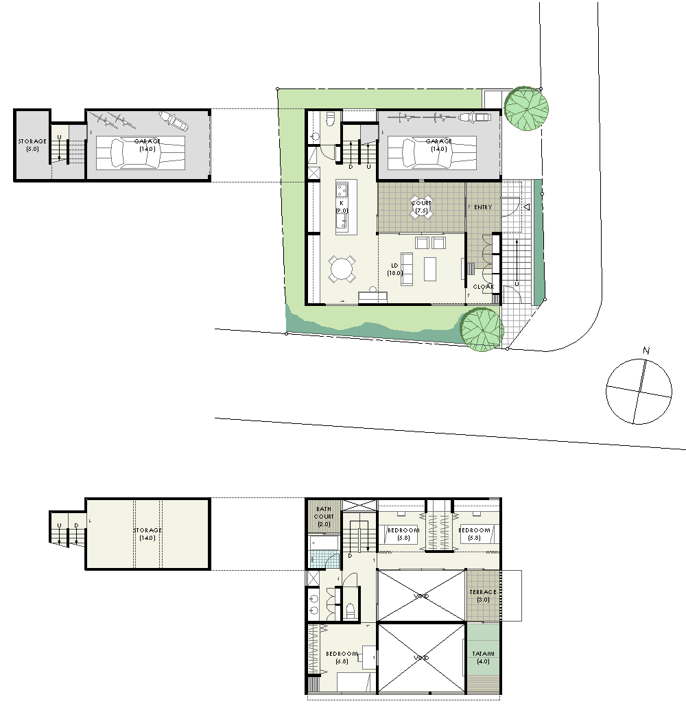
| 計画地 :神奈川県横浜市栄区 | 閑静な住宅街にある東南の角地。南側道路の向こうは崖となっていて眺望、日当たりの申し分のない敷地である。建物の計画にあたっては風水、防犯の考慮、家族の気配が家中に伝わることを要望された。建物の形態や、玄関や台所の配置は風水の教えに倣って決定しており、防犯機能の強化のため小さな中庭を持つコートハウスとしている。外に対する開口は眺望と日照のための最低限に限り、中庭に対しては大きく開く構成としている。中庭を囲うように部屋を配することで各部屋への採光やプライバシーの問題が解決され、表と裏の動線も明確に分けられており、道路と敷地の高低差が半階ほどあるのを活かして収納を随所に設けている。また各部屋間がオープンにつながる中で1部屋だけ離れと呼べるような小部屋を隠れた場所に設けている。 |
| 用 途 :住宅 | |
| 主要構造:木造在来工法 | |
| 敷地面積:173.17m2 | |
| 延べ面積:148.22m2 | |
PLAN(B1F/1F)
(M2F/2F)
MODEL PHOTO
|
|
|
|