| ■k-complex | 完成未定 |
| 計画地 :横浜市都筑区 |
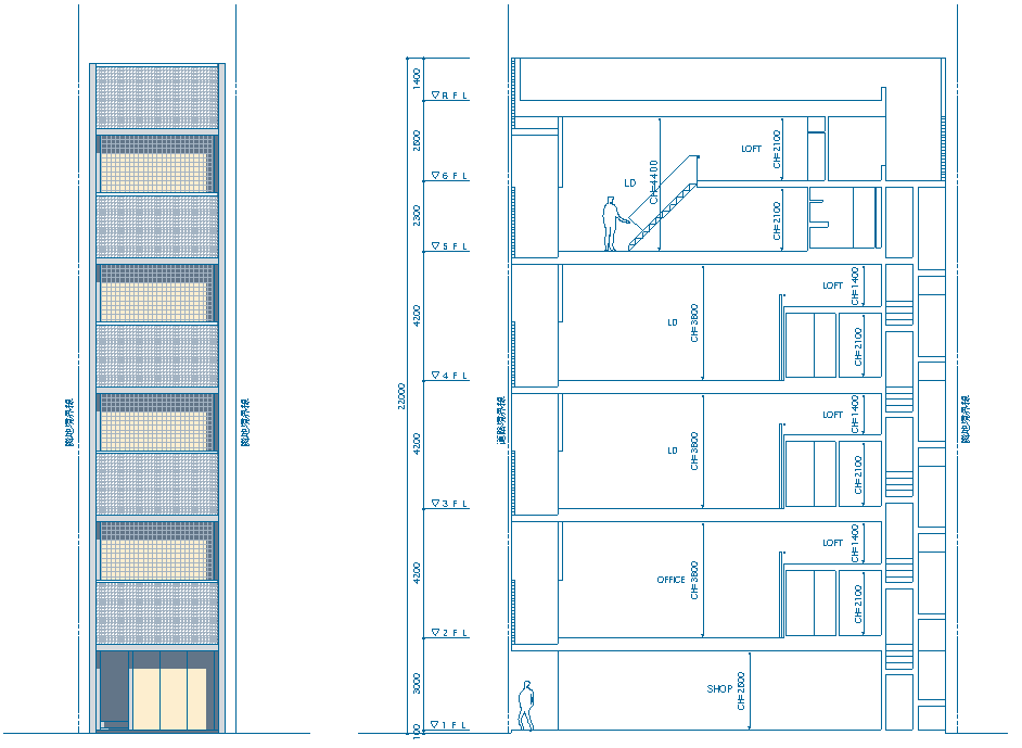
この数年で飛躍的な発展の途上に有る地域のまさに駅前における計画である。数多くの地権者のために区画整理されたこの街区はそのほとんどの敷地が間口5m奥行き15mほどの敷地に細分化され、100mほど離れた位置で大規模百貨店を中心に共同事業化が進められている街区に比べ大幅に開発が遅れ空洞化の恐れもある地域である。 狭小ながら容積率600%をなるべく有効に活用するためELVなしの6階建てとし、ワンフロア1住戸の集合住宅を主用途として、地区計画に従い1階は店舗、2階を事務所としている。高さ方向における法的な余裕を利用できるよう2〜4階はロフト付とし、5、6階は屋上テラス付の隠れ家的なメゾネット住戸として付加価値を与え、事業面での収支の向上を図っている。またSOHO的な使用にも対応できるよう住戸内は広いワンルームとし可動収納によって間仕切ることで用途や住人数に対応できるようにしている。 現在は両隣地とも駐車場として利用される空地となっているが、将来的に建物が近接して建てられることを想定し厚いコンクリート壁で閉鎖的にし、道路面に対してのみ大きな開口面を設けている。道路側の開口は住宅として使用する場合の生活感を排除するためバルコニー外側に穴明きレンガの目隠し壁を2mほど立上げ室内外を隔てる開口部は上半分を半透視のガラスブロック、下半分を大きな透明ガラスとしている。 |
| 用 途 :店舗+事務所+集合住宅 | |
| 主要構造:鉄筋コンクリート造(壁式ラーメン構法) | |
| 敷地面積:74.73m2 | |
| 延べ面積:290.38m2 | |
PLAN

ELEVATION/SECTION

PERSPECTIVE
|
|