| ■包・家(tutu・miya) | 2008.04 |
| 計画地 :神奈川県横浜市 | 起伏のある住宅街にある南向き雛壇の敷地。日当たりの良さを十分活かしながら、外に閉じて内に開くコートハウス。中庭が垣間見えるトンネル状のアプローチはそのまま愛車を眺めるためのステージとなり、その中庭を中心として家族全体をやさしく包みこむような家である。オープンな中庭の他にも、各所に坪庭や離れを設けたりすることで空間と視線に奥行と変化を与えている。 |
| 用 途 :住宅 | |
| 主要構造:木造在来工法 | |
| 敷地面積:222.41m2 | |
| 延べ面積:154.55m2 | |
1FPLAN
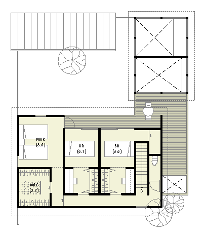
2FPLAN
|
|
|
|
|
|
|
|
|
|
|
|